Mehrfamillienhaus I
Wählen Sie Ihre Wohnung

- 3.OG
- W 3.4
- W 3.3
- W 3.2
- W 3.1
- 2.OG
- W 2.6
- W 2.5
- W 2.4
- W 2.3
- W 2.2
- W 2.1
- 1.OG
- W 1.6
- W 1.5
- W 1.4
- W 1.3
- W 1.2
- W 1.1
- EG
- W 0.6
- W 0.5
- W 0.4
- W 0.3
- W 0.2
- W 0.1
Grundrissvarianten
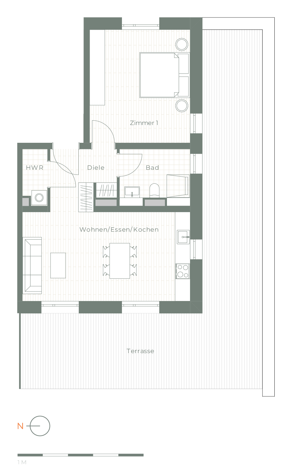
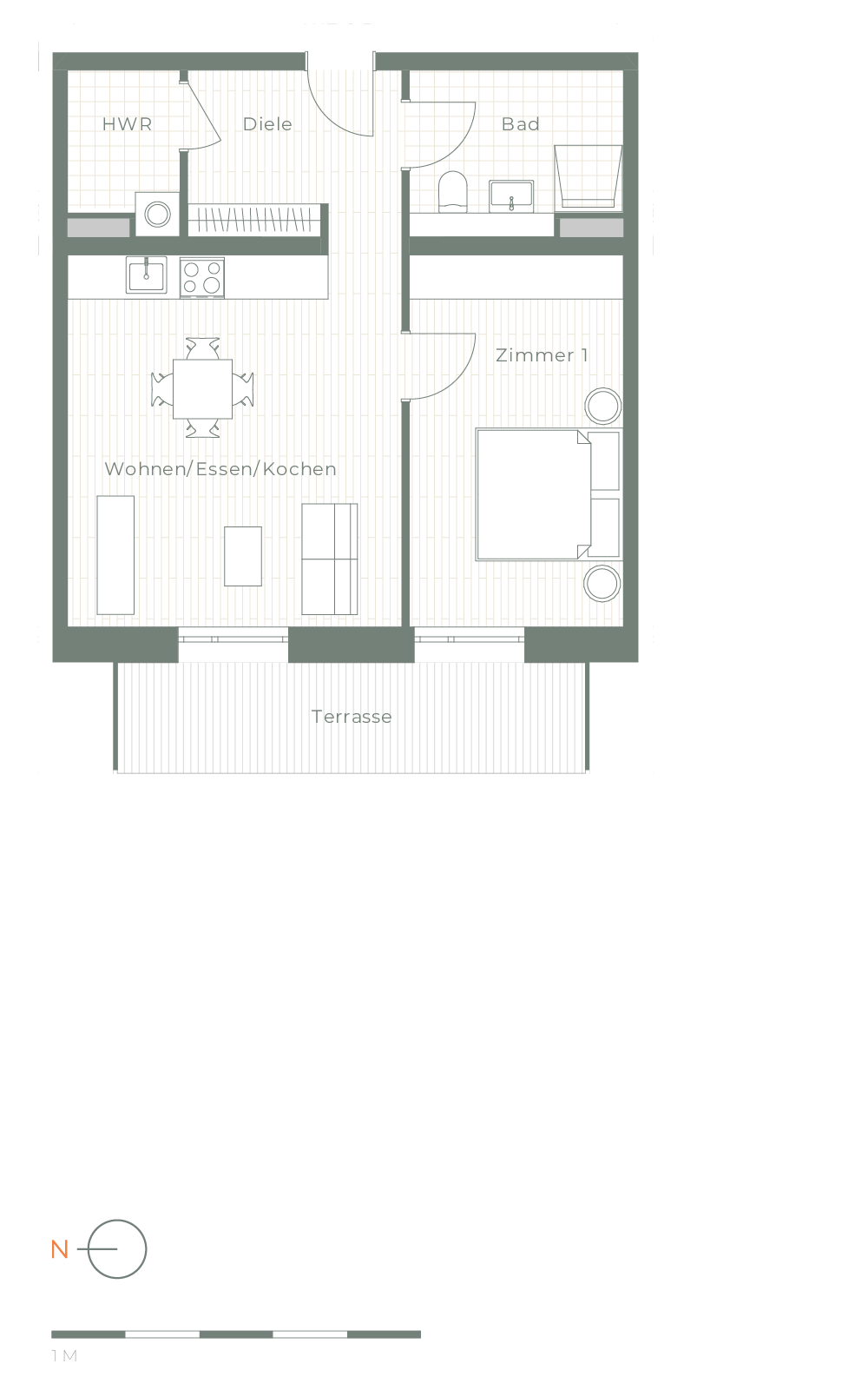
Wohnung 3.4, 3. Obergeschoss , 2 Zimmer
Diele6,1 m²Wohnen, Essen, Kochen23,6 m²Zimmer 118,0 m²Bad6,0 m²HWR2,1 m²Terrasse 25%13,9 m²Wohnfläche69,7 m²Wohnung 3.3, 3. Obergeschoss, 3 Zimmer
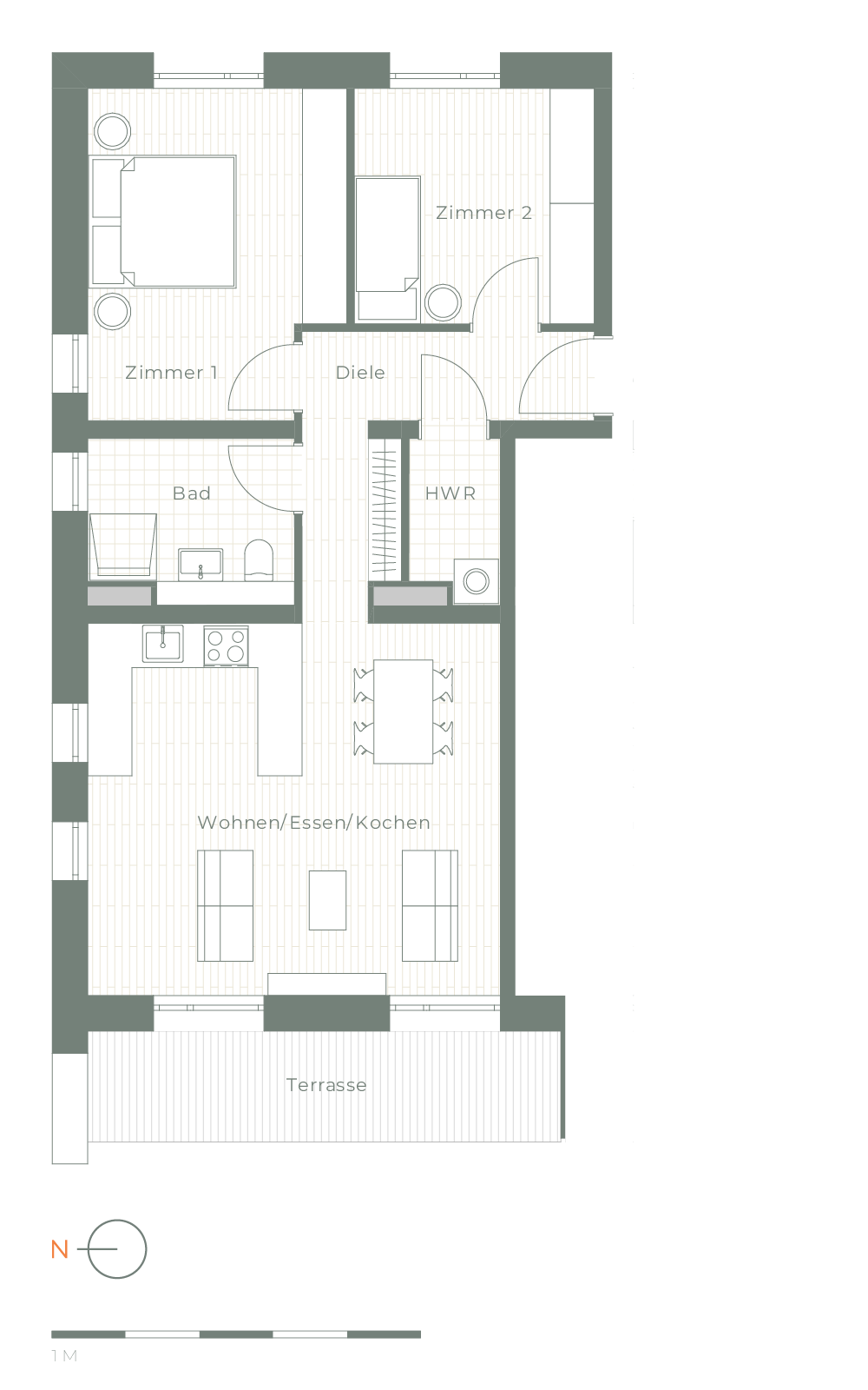
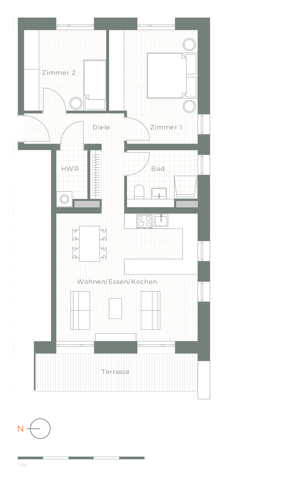
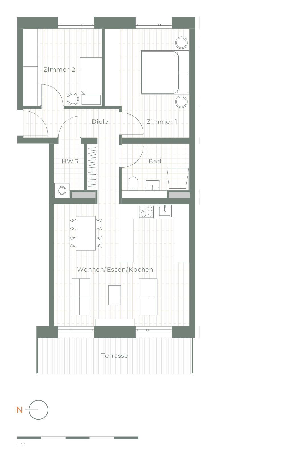
Diele7,1 m²Wohnen, Essen, Kochen33,2 m²Zimmer 117,3 m²Zimmer 210,3 m²Bad6,1 m²Bad 26,0 m²HWR3,6 m²Terrasse 25%7,1 m²Wohnfläche90,7 m²Wohnung 3.2, 3. Obergeschoss, 3 Zimmer
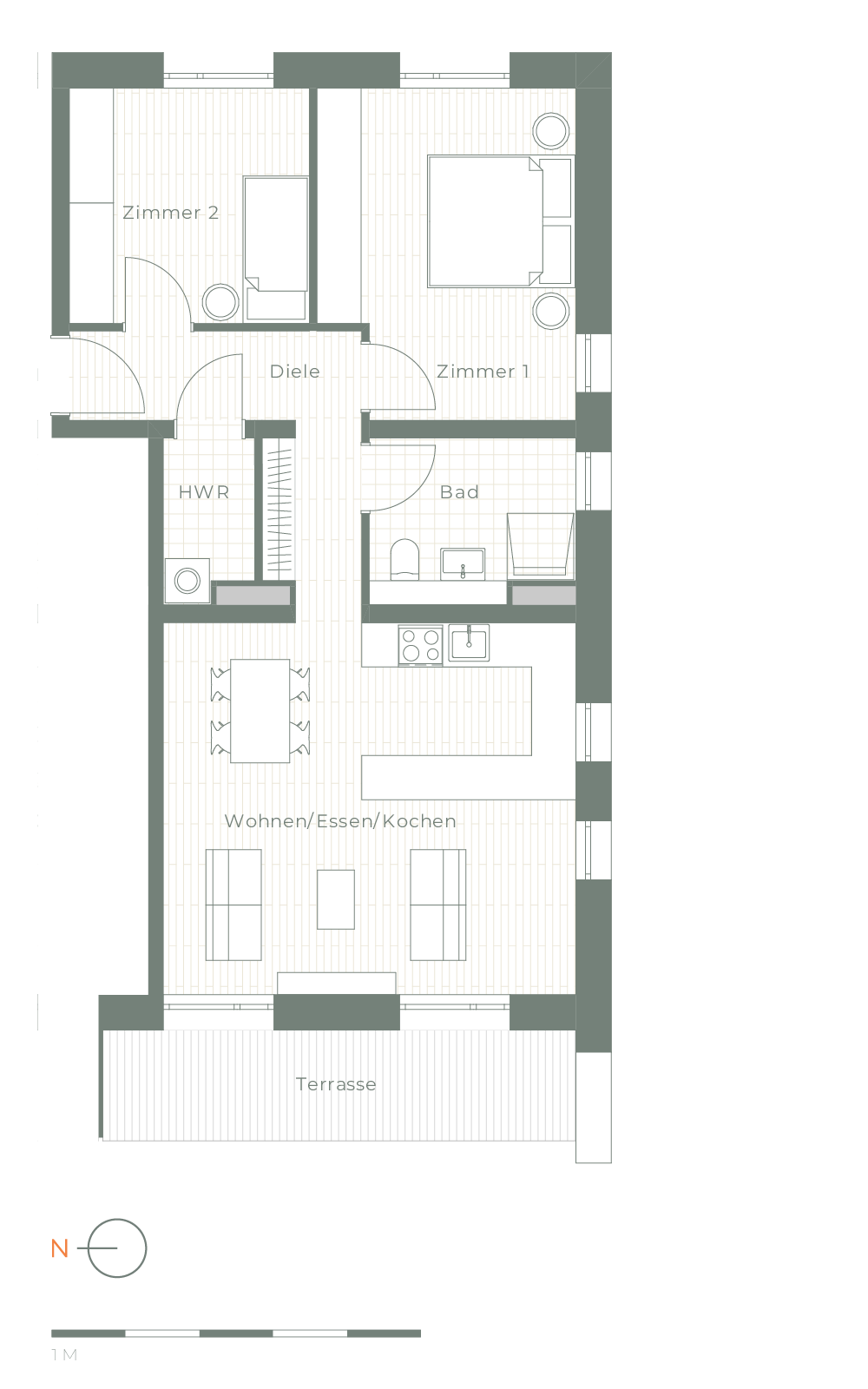
Diele7,1 m²Wohnen, Essen, Kochen33,2 m²Zimmer 117,3 m²Zimmer 210,3 m²Bad6,1 m²Bad 26,0 m²HWR3,6 m²Terrasse 25%7,1 m²Wohnfläche90,7 m²Wohnung 3.1, 3. Obergeschoss, 2 Zimmer
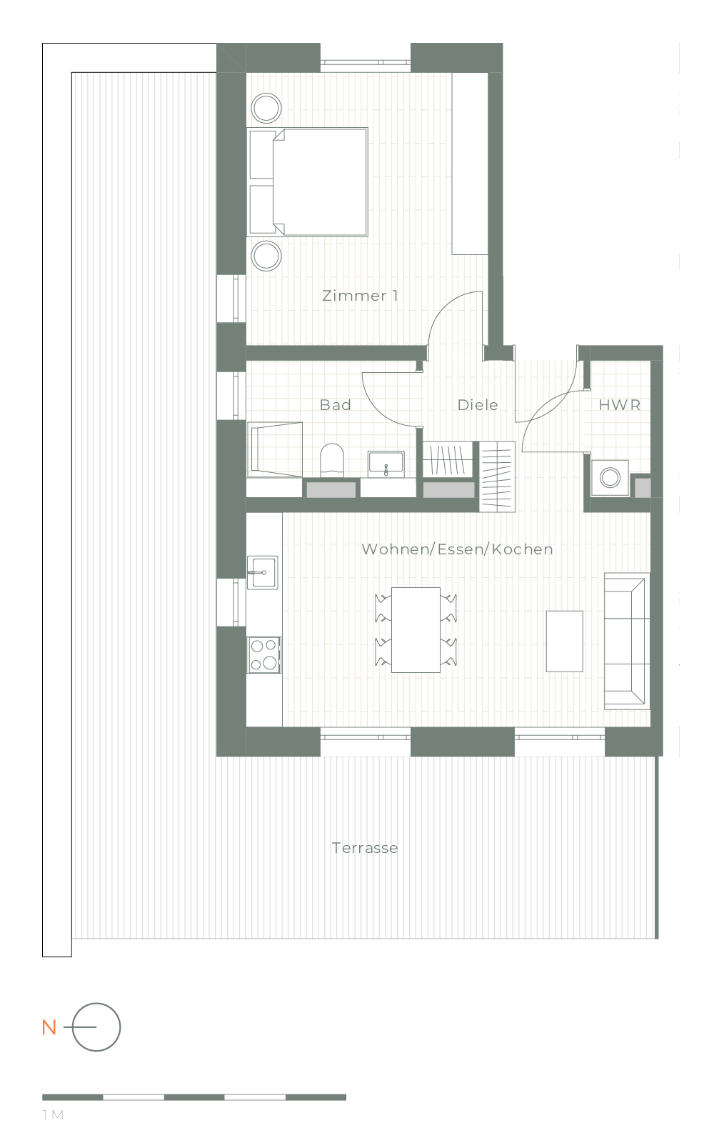
Diele6,1 m²Wohnen, Essen, Kochen23,6 m²Zimmer 118,0 m²Bad6,0 m²HWR2,1 m²Terrasse 25%13,9 m²Wohnfläche69,7 m²Wohnung 2.6, 2. Obergeschoss, 3 Zimmer
Diele8,1 m²Wohnen, Essen, Kochen28,2 m²Zimmer 114,9 m²Zimmer 210,4 m²Bad 16,0 m²HWR2,6 m²Terrasse 50%4,8 m²Wohnfläche75,0 m²Wohnung 2.5, 2. Obergeschoss, 2 Zimmer
Diele6,8 m²Wohnen, Essen, Kochen22,8 m²Zimmer14,6 m²Bad6,3 m²HWR3,2 m²Terrasse 50%4,8 m²Wohnfläche58,5 m²Wohnung 2.4, 2. Obergeschoss, 3 Zimmer
Diele8,1 m²Wohnen. Essen, Kochen28,2 m²Zimmer 114,9 m²Zimmer 210,4 m²Bad 16,0 m²HWR2,6 m²Terrasse 50%4,8 m²Wohnfläche75,0 m²Wohnung 2.3, 2. Obergeschoss, 3 Zimmer
Diele8,1 m²Wohnen, Essen, Kochen28,2 m²Zimmer 114,9 m²Zimmer 210,4 m²Bad6,0 m²HWR2,6 m²Terrasse 50%4,8 m²Wohnfläche75,0 m²Wohnung 2.2, 2. Obergeschoss , 2 Zimmer
Diele6,8 m²Wohnen, Essen, Kochen22,8 m²Zimmer14,6 m²Bad6,3 m²HWR3,2 m²Terrasse 50%4,8 m²Wohnfläche58,5 m²Wohnung 2.1, 2. Obergeschoss, 3 Zimmer
Diele8,1 m²Wohnen, Essen, Kochen28,2 m²Zimmer 114,9 m²Zimmer 210,4 m²Bad 16,0 m²HWR2,6 m²Terrasse 50%4,8 m²Wohnfläche75,0 m²Wohnung 1.6, 1. Obergeschoss, 3 Zimmer
Diele8,1 m²Wohnen, Essen, Kochen28,2 m²Zimmer 114,9 m²Zimmer 210,4 m²Bad 16,0 m²HWR2,6 m²Terrasse 50%4,8 m²Wohnfläche75,0 m²Wohnung 1.5, 1. Obergeschoss, 2 Zimmer
Diele6,8 m²Wohnen, Essen, Kochen22,8 m²Zimmer14,6 m²Bad6,3 m²HWR3,2 m²Terrasse 50%4,8 m²Wohnfläche58,5 m²Wohnung 1.4, 1. Obergeschoss, 3 Zimmer
Diele8,1 m²Wohnen, Essen, Kochen28,2 m²Zimmer 114,9 m²Zimmer 210,4 m²Bad 16,0 m²HWR2,6 m²Terrasse 50%4,8 m²Wohnfläche75,0 m²Wohnung 1.3, 1. Obergeschoss, 3 Zimmer
Diele8,1 m²Wohnen, Essen, Kochen28,2 m²Zimmer 114,9 m²Zimmer 210,4 m²Bad 16,0 m²HWR2,6 m²Terrasse 50%4,8 m²Wohnfläche75,0 m²Wohnung 1.2, 1. Obergeschoss, 2 Zimmer
Diele6,8 m²Wohnen, Essen, Kochen22,8 m²Zimmer14,6 m²Bad6,3 m²HWR3,2 m²Terrasse 50%4,8 m²Wohnfläche58,5 m²Wohnung 1.1, 1. Obergeschoss, 3 Zimmer
Diele8,1 m²Wohnen, Essen, Kochen28,2 m²Zimmer 114,9 m²Zimmer 210,4 m²Bad 16,0 m²HWR2,6 m²Terrasse 50%4,8 m²Wohnfläche75,0 m²Wohnung 0.6, Erdgeschoss, 3 Zimmer
Diele8,1 m²Wohnen, Essen. Kochen28,2 m²Zimmer 114,9 m²Zimmer 210,4 m²Bad6,0 m²HWR2,6 m²Terrasse 50%4,8 m²Wohnfläche75,0 m²Wohnung 0.5, Erdgeschoss, 2 Zimmer
Diele6,8 m²Wohnen. Essen, Kochen22,8 m²Zimmer14,6 m²Bad6,3 m²HWR3,2 m²Terrasse 50%4,8 m²Wohnfläche58,5 m²Wohnung 0.4, Erdgeschoss, 3 Zimmer
Diele8,1 m²Wohnen, Essen, Kochen28,2 m²Zimmer 114,9 m²Zimmer 210,4 m²Bad6,0 m²HWR2,6 m²Terrasse 50%4,8 m²Wohnfläche75,0 m²Wohnung 0.3, Erdgeschoss, 3 Zimmer
Diele8,1 m²Wohnen, Essen, Kochen28,2 m²Zimmer 114,9 m²Zimmer 210,4 m²Bad6,0 m²HWR2,6 m²Terrasse 50%4,8 m²Wohnfläche75,0 m²Wohnung 0.2, Erdgeschoss, 2 Zimmer
Diele6,8 m²Wohnen, Essen, Kochen22,8 m²Zimmer 114,6 m²Bad6,3 m²HWR3,2 m²Terrasse 50%4,8 m²Wohnfläche58,5 m²Wohnung 0.1, Erdgeschoss, 3 Zimmer
Diele8,1 m²Wohnen, Essen, Kochen28,2 m²Zimmer 114,9 m²Zimmer 210,4 m²Bad6,0 m²HWR2,6 m²Terrasse 50%4,8 m²Wohnfläche75,0 m²





















